Shaorou Cafe

View of Shaorou Cafe from level 3, Gala City

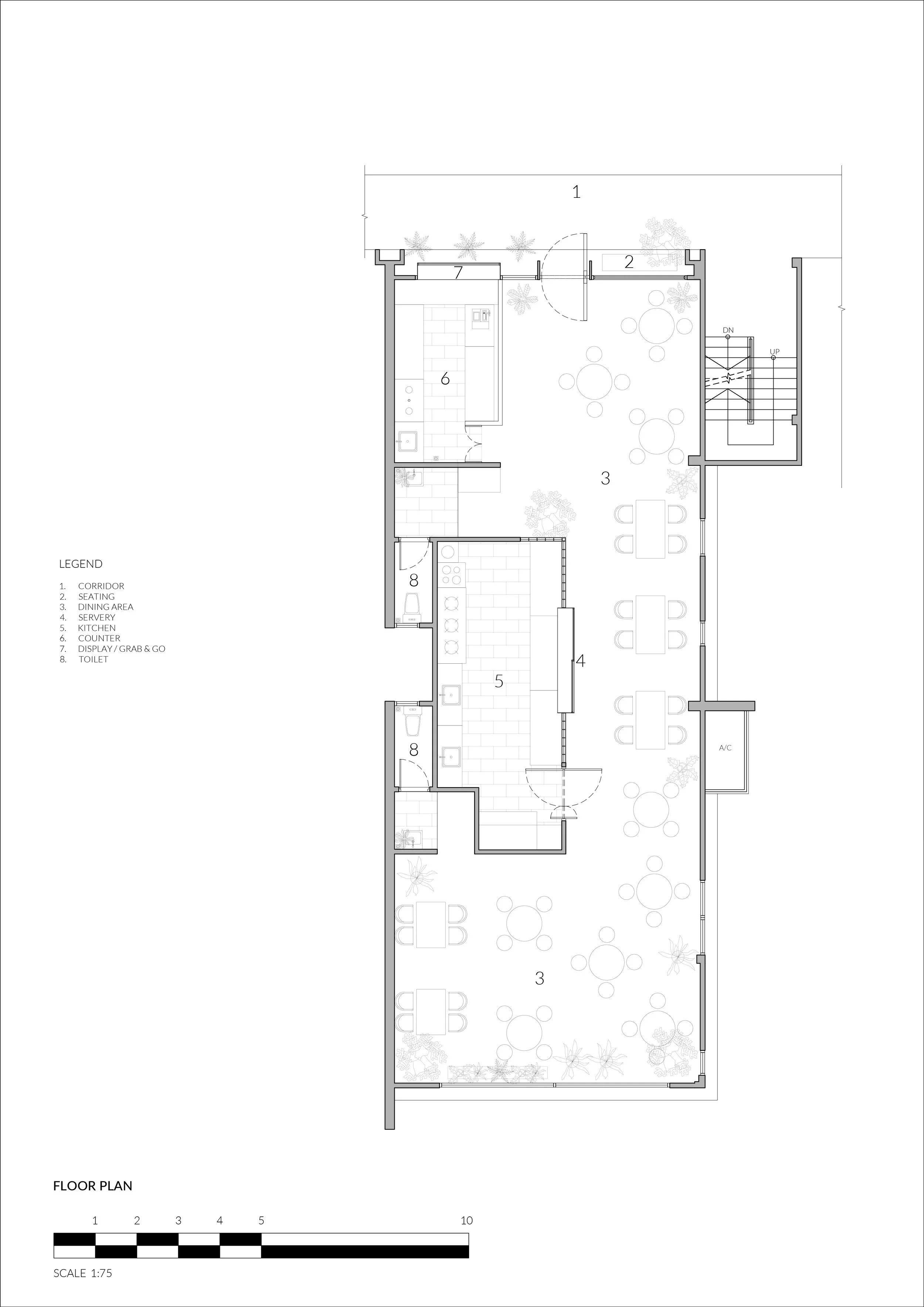
The cafe is located within an existing commercial street mall development in Kuching. The building contains busy coffee shops, eateries and offices on various levels. At its conception, the cafe was intended to be the first eatery within the building to be located on the upper floor. An internal common space links all shop lots in place of a typical back-lane, essentially acting as a ‘street mall’. This meant that like a mall, the back of the lot was to be prioritised as the main frontage for the café.

The lightbox signage attracts the busy crowds below

To address the need to attract customers to the café due to its atypical location in the building, the signage of the café was designed as a lightbox. The idea was to draw attention from the bustling crowds both around and below the café, signaling its presence within the building.

The glass blocks provide transparency and privacy

The glass blocks provide light & a degree of transparency from outside

Glass blocks were incorporated extensively throughout the café. This is due to their ability to balance transparency and privacy, ease of maintenance, and air-conditioning requirements. The design of the glass block façade of the front intends to strike a balance between the idea of pulling in crowds through transparency, while maintaining enough detachment from the busy coffee shop environment outside.

Controlled minimal pallette provide a backdrop for furniture

Indoor plants are used extensively in this project due to the generous amount of natural light provided by existing east-facing full-height windows. This approach also served to soften and add warmth to the café’s overall aesthetic, contrasting its ‘cooler’ material palette. To minimise cost, reconditioned furniture and decorations were used. Finishes were also expressed in their raw state wherever possible to keep in the same spirit of these reconditioned pieces and reduce cost.

Text by the architect

 

PROJECT GALLERY

 
  • Architect : SML Architects
    Client : Shaorou Cafe
    Area : 150 m²
    Project Location : Kuching | Sarawak
    Year : 2023

  • C&S Engineer : RSJ Engineering
    Design Team : Arlene Chew | Mark Eng | Wong Qin Kae
    Photography : Mark Eng | Sean Wee | Wong Qin Kae

 
Author Profile Wrapper

Share this project

Previous
Previous

The Cara Hotel

Next
Next

Cat House