Kasuma House

A single-residence vacation home designed by Arkitek LH Wong, located in Kasuma Resort

Kasuma House, designed by Arkitek LH Wong, is around half-an-acre of relatively level land oriented in an east-west direction. The western end immediately faces a green golf field with views of Mount Serapi (West) to Mount Santubong (North) in the background. Meanwhile, the eastern end faces existing ageing condominium blocks.

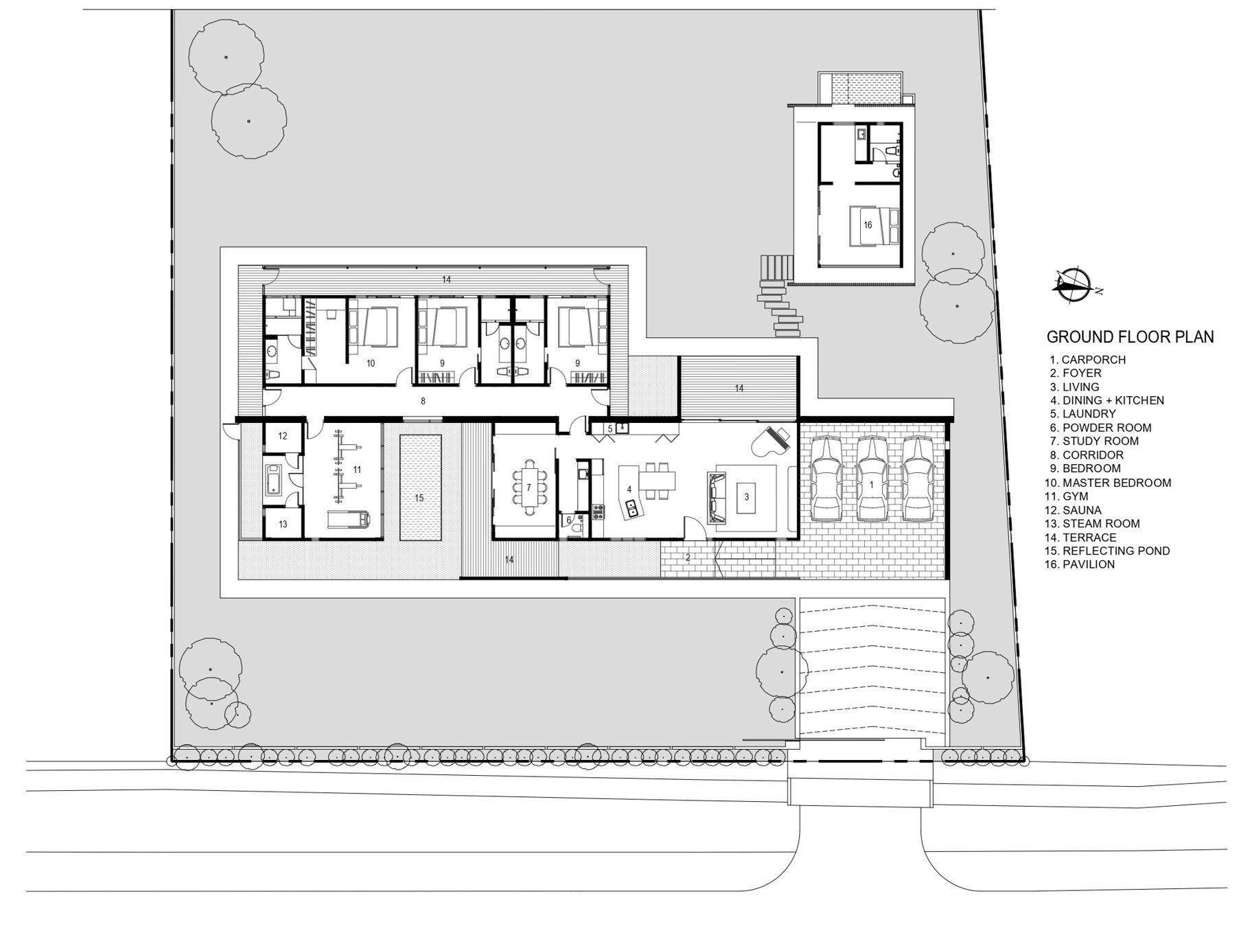
Overall floor plan of Kasuma House

A modest single-storey home was built — despite the large plot — keeping most of the land for garden space

The client is a young man who, alongside his ageing parents, desires a retreat home outside of the busy city center. As Covid-19 has made travel difficult, the house may be used for weekend getaways or even extended stays. In contrast to the large land size, the client wants a small single-storey home, dedicating most of the land for greenery as the family are avid gardeners and enjoy the outdoors.

Clean lines define the façade, with vertical timber screens forming a strong linear rhythm

Simple roofline and restrained material palette reinforce the minimalist architectural expression

Thus, having a connection between the indoors and outdoors whilst maintaining the security and privacy of this isolated home is paramount. In addition, the client is inspired by Japanese architecture and requested a clean and simple building form with straight lines.

Upon entering, the three main spaces open up in a fluid layout

The living room opens onto a terrace that shades the afternoon sun and frames the garden

Two rectangular blocks connected by a prominent linear wall form the house. The wall also serves to isolate the common block away from the private block. The common block is an open plan consisting of the living room, dining area and kitchen. Vertical louvers screen the main entrance from the morning sun and public road. An outdoor terrace extrudes from the living room offering shade from the glaring afternoon sun and frames the garden, golf range and background mountain range.

The vertical screen offers privacy, sun protection, and security for the bedrooms — extending the façade’s timber language from front to back

The private block consists of three bedrooms with attached bathrooms. An overhang terrace and vertical screen wall provides privacy and security to the bedrooms and shields them from the glaring afternoon sun.

The gym and study open onto an outdoor courtyard, featuring a round window

Natural lighting fills the corridor during the day

As the house is surrounded by undeveloped land, the terrace has been raised by 450mm to hopefully prevent snakes and critters from entering the house. The two blocks are connected by a linear corridor. This prominent wall features only one window offering a view into a small outdoor courtyard separating the study room and gym. Despite the lack of windows, natural light is in abundance through extensive use of skylights.

Text by the architect

 

PROJECT GALLERY

 
  • Architect : Arkitek LH Wong
    Client : Undisclosed
    Area : 235 m²
    Project Location : Kuching | Sarawak
    Year : 2025

  • C&S Engineer : J.K. Bersatu Sdn. Bhd.
    Interior Designer : Eden Atelier
    Contractor : Wee Soon Chai Construction Co.
    Photography : Ricco Soh | Clarissa Sze

 
Author Profile Wrapper

Share this project

Previous
Previous

Surau As-Sa’adah

Next
Next

Borneo Convention Center Kuching (BCCK)