ASCEND Residence

Front view of the house from Bampfylde Road

ASCEND Residence, a renovation project by Design Network Architects, embodies both physical restoration and emotional reconciliation between past and present—rebuilding a new home out of an old house and allowing the present to continue its dialogue with the past. The design embraces where the old structure is not erased but reinterpreted to coexist with modern functionality. It stands as an architecture that honours its origins while evolving gracefully into a renewed, living space that connects heritage, family, and the future.

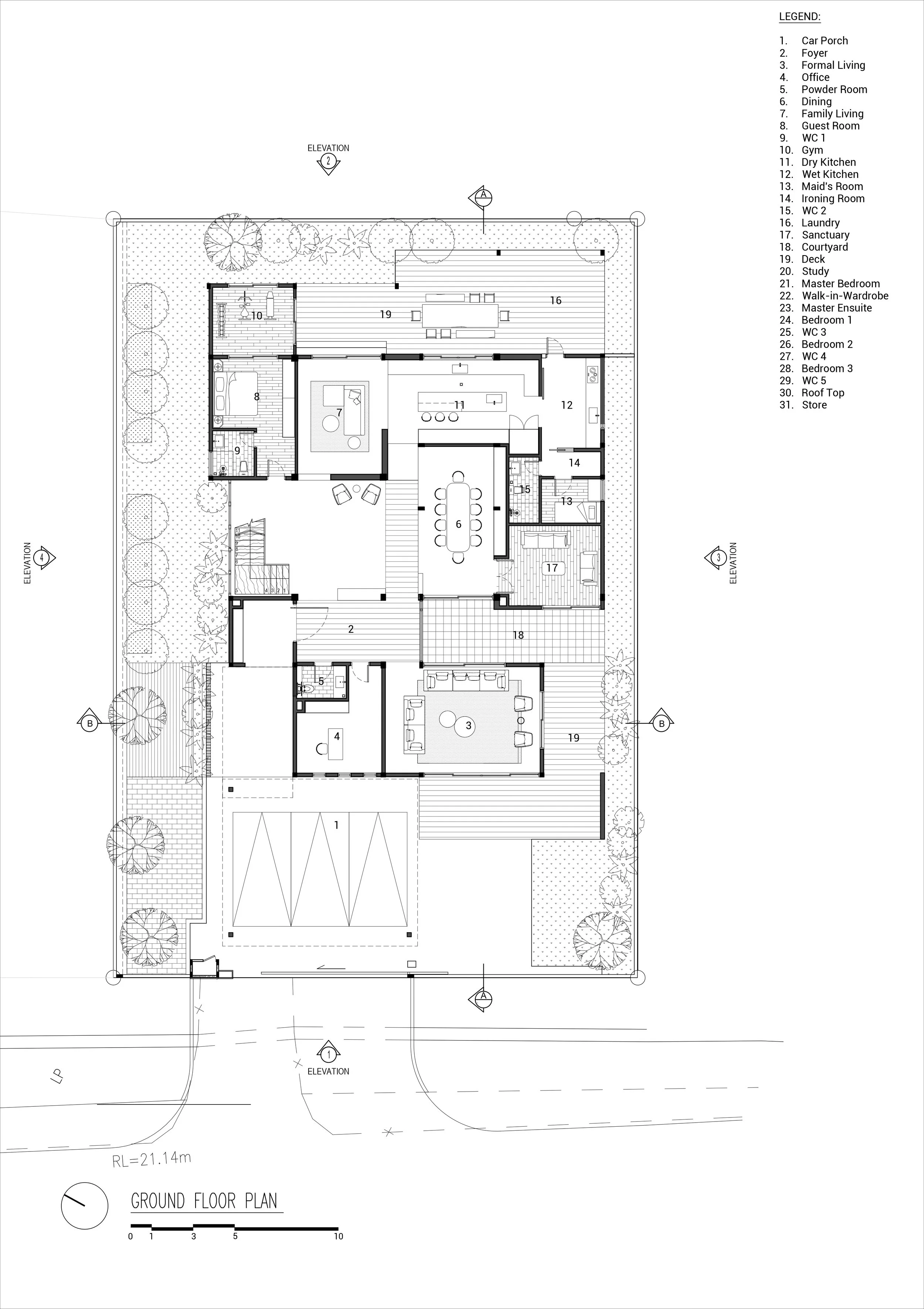
Ground floor plan of ASCEND

The design approach was therefore grounded in the philosophy of adaptive preservation — maintaining the integrity and character of the existing structure while integrating functionality, spatial clarity, and natural light. The new addition was designed to ‘ascend’ above the existing form; expressing renewal without erasure.

The original front façade and steps at the interior before renovations

Construction began in March 2020, as the pandemic struck causing years of delays and challenges that tested the team’s patience. Yet, with persistence and trust, the project was completed just before Father’s Day in 2025

Original old external structure and internal staircase before renovations

The original house was built in 1974, it had low ceilings and multiple floor levels; making the integration of the new building more challenging. This was overcome by the insertion of a high front block, while maintaining a visual and structural distinction from the existing block. The new entrance lobby bridges the past with the present.

The primary design strategy is to create the front façade while preserving the original structure

Construction phase of the new façade structure

Inside, much of the existing spatial layout was retained, with reconfiguration where necessary to enhance openness and light. The original central hall remains as the home’s main circulation spine, while new openings and skylights introduce lightness and clarity. Original staircases and steps were preserved, serving as tactile reminders of the home’s lineage and craftsmanship.

 The entrance's checkered-floor lobby serves as the bridge between the past and the present

In order to create openness with natural light, strategic interventions were made — larger apertures were carved into non-structural walls, and skylights were introduced above circulation spaces. These were done with restraint, without overwhelming the original character and charm of the original house; resulting in an evolving sanctuary.

Screens, skylights, and large windows were designed to maximize the openness and natural light

This renovation project demonstrates how a building’s past can be reawakened to enrich its present and future—melding seamlessly with new interventions to continue its evolving story.  The project stands as a testament to the idea that the essence of architecture lies not in what is built anew, but in what is remembered and reimagined. By retaining the old structure, we preserve not only a building, but also the stories that give it its history.

Text by the architect | homeowners

 

PROJECT GALLERY

 
  • Architect : Design Network Architects Sdn Bhd
    Client : AF and EV
    Area : Undisclosed
    Project Location : Kuching | Sarawak
    Year : 2025

  • C&S Engineer : Jurutera Alpha Milenium
    Landscape Architect : Earthscape Inhabitant SB
    Contractor : Lung Seng Huat Construction & Development Sdn Bhd | Pin Yen Marble & Granite Sdn Bhd | RG Agriculture Sdn Bhd
    Consultants : Trianon Sdn Bhd | Jarvis Ling (M&E) | Rebecca Wee
    Design Team : Ar. William Khoo | Ar. Mervyn Wong | Chin Kuan Wei
    Photography : Seau Zi Xiang

  • Floor | Floor Finishes
    • Tile : Niro Granite | MML
    • Timber : Merbau Flooring by Seng Wee Trading Co
    • Others : Curtain by Galleria Interior Décor
    Wall | Wall Finishes
    • Wall Covering : Vasari Malaysia | Goodrich Global Sdn Bhd
    Roofing Systems : United GI Products (UGI)
    Aluminium and Glazing : Welplus Sdn Bhd | DML
    Paint Systems : Jotun
    Door | Hardware : Patrick Chia Enterprise | Kaisu (M) Sdn Bhd
    Sanitary Fittings | Systems : Toto by Madaya (M) Sdn Bhd | Grohe by Perusahaan Tong Tai Sdn Bhd
    Kitchen Fittings | Systems : Bofi (M) Sdn Bhd | Perusahaan Tong Tai Sdn Bhd | Grohe | Bosch
    Lighting Design | Fittings : Tsen Lightings | Justlight
    Furniture : Bo Concept | Hatch

 
Author Profile Wrapper

Share this project

Previous
Previous

RT Cargo

Next
Next

PD Residences