St. Margaret’s Church Stampin

Ariel view of the St. Margaret’s Church

St. Margaret's Church Stampin designed by Perunding Dayacipta Architects draws inspiration from the biblical Tent of Meeting — a sacred space where God dwelled among His people during their journey through the wilderness (Exodus 33:7–11). This ancient tent was not merely a structure, but a powerful symbol of divine presence, communion, and guidance.

Axonometric diagram of St. Margaret Church

In this modern interpretation, the church becomes a contemporary tabernacle — a place of encounter between God and His people. The form echoes the simplicity and mobility of the original tent, emphasizing humility, openness, and reverence. The architecture invites worshippers into a space that is both earthly and transcendent, rooted in biblical tradition yet speaking to the spiritual journey of today’s believer.

The space planning encourages closeness to God, with a central focus reflecting the Holy of Holies

The layout promotes intimacy with God, with a central focus that mirrors the Holy of Holies, and spatial transitions that reflect movement from the outer court to the innermost sanctuary. Filtered light and symbolic geometry evoke the sacred atmosphere of the original tabernacle, while allowing flexibility for worship, gathering, and reflection. This design is not just a building — it is a dwelling place of God's presence, where the community can come together, be transformed, and be sent forth, much like the Israelites journeying under divine guidance.

Entrance to the Worship Hall with a welcoming clear-glazed door — giving a clear view of the altar

Father Rev Almon walking along the corridor as he gets ready for Mass

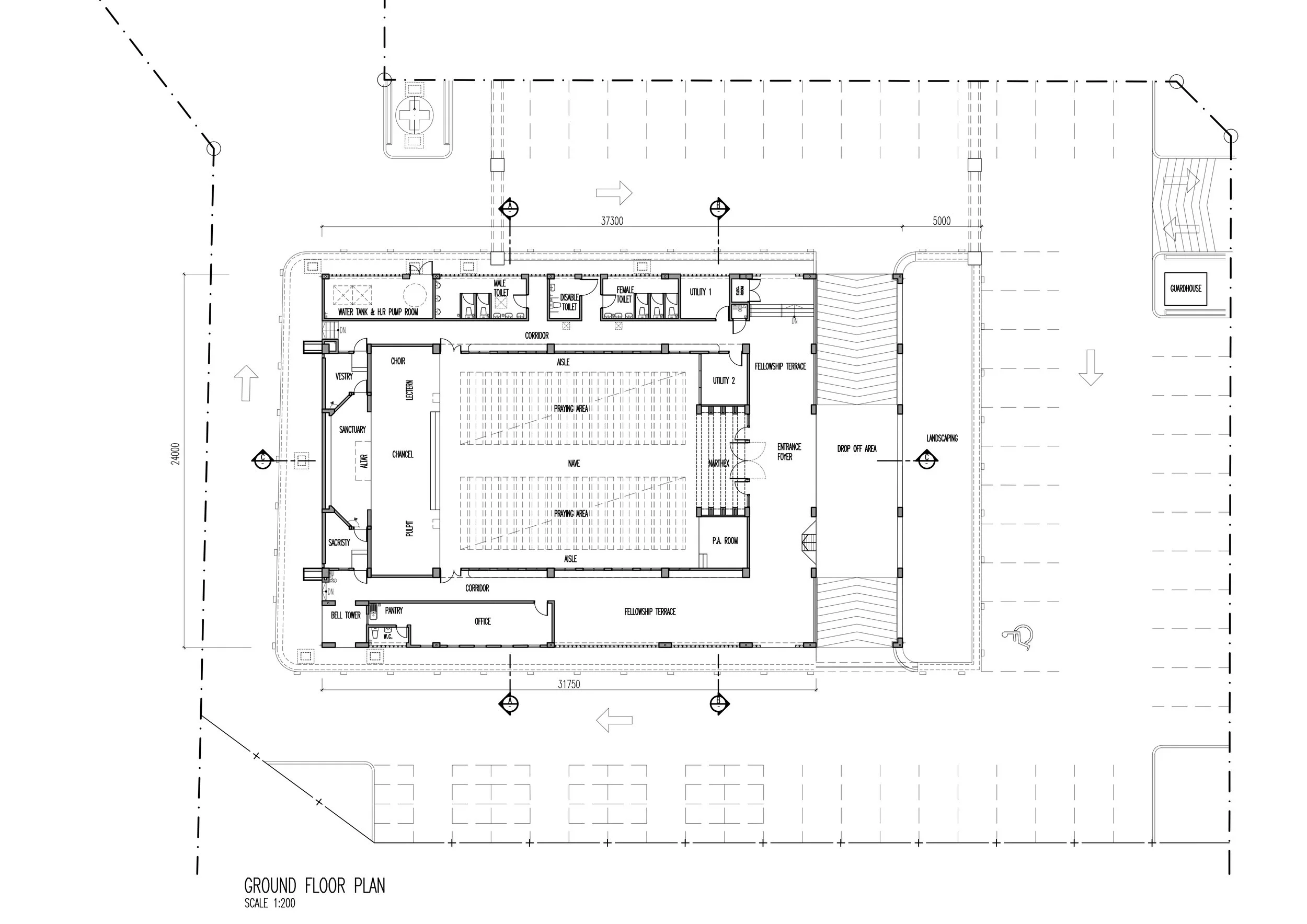
The spatial design of the church is centered around a clear and powerful idea: placing the sanctuary — the heart of worship — at the very core of the building. Inspired by Louis I. Kahn’s search for what a chapel “wants to be,” the layout reflects a sense of spiritual gravity, drawing people inward toward a sacred center.

Simple geometry and warm, neutral colurs enhance a calm, timeless spiritual setting

Encircling the sanctuary is an ambulatory, a transitional space that gently mediates between stillness and activity. This continuous walkway creates a contemplative threshold, offering a moment of pause before entering the sanctuary. It also serves as an organizing spine, linking the surrounding facilities — chapel, sacristy, fellowship spaces, offices, and support functions — into a unified whole. The result is a design that honors both the spiritual and the communal life of the church. The sanctuary is not isolated, but embraced — physically and symbolically — by the life and movement of the church community.

View from the altar shows the centralize geometry in the overall church design

The interior of the church also takes inspiration from the biblical Tent of Meeting, creating a space that feels both sacred and welcoming. The high, pitched ceiling recalls the tent-like structure of the original tabernacle, giving the space a sense of height, lightness, and spiritual openness. Soft, filtered light enters through clerestory and side windows, creating a calm and reflective atmosphere throughout the day. The clean geometry and warm, neutral color palette contribute to a serene and timeless environment, enhancing the spiritual experience for worshippers.

St. Margaret’s Church Stampin — designed for flexibility, supporting worship, prayer, community use and reflection

From acoustics to lighting, each element supports the building’s sacred and functional purpose

Designed with flexibility in mind, the space accommodates a range of uses — from worship services and prayer gatherings to community events and quiet reflection. Every design element, from acoustics to lighting, has been thoughtfully integrated to support the building’s purpose as a sacred, functional, and enduring place of gathering.

Text by the architect

 

PROJECT GALLERY

 
  • Architect : Perunding Dayacipta Architects
    Client : Fellowship members of St. Margaret’s Church Stampin
    Area : 895 m²
    Project Location : Kuching | Sarawak
    Year : 2025

  • C&S Engineer : Jurutera Adda Sdn. Bhd.
    M&E Engineer : Alpha Beta JP Sdn. Bhd.
    Quantity Surveyor : PUBM Quantity Surveyors Sdn. Bhd
    Contractor : Polybuilding Construction Co.
    Photography : Sean Wee | Ricco Soh

  • Floor | Floor Finishes
    • Tile : Belluci / Apache Porcelain Tile | MML
    Wall | Wall Finishes
    • Brick : Ecobricks
    • Drywall : Standard Core Gypsum Plaster Board | USG Boral
    • Wall Covering : Echostop Perforated Gypsum Board | USG Boral
    Roofing Systems : ENDUROTRUSS framing system | Vermoe | Ecosteel
    Aluminium and Glazing : LB ALBE Ecosash AECW 65 / ALBESASH performance window APSW / V3
    Façade Systems : Ventilation Block | Premier Building Material
    Paint Systems : Vinilex Wallsealer, Weatherbond, Vinilex Easy Wash, Super matex | Nippon
    Waterproofing | Coating Systems : OnePart-Elastic (ELO) Single Component High Elastic Cementitious Waterproofing | Pentens
    Ceiling | Ceiling Systems : Unispan Gypsum Plaster Board Ceiling | USG Boral
    Door | Hardware : Metal Door Frames | Elbest
    Sanitary Fittings | Systems : Claytan | Kaisu

 
Author Profile Wrapper

Share this project

Previous
Previous

Rimbunan Hijau Headquarters

Next
Next

Khoon’s House