Satok Furniture Showroom

IDCA was commissioned to design the Satok Furniture Showroom, located in a recently renovated three-storey commercial shophouse by ARKITEKUEH

In 2021, IDCA was commissioned by Satok Furniture to design a new showroom for their range of office furniture. The project was located in a recently renovated three-storey commercial shophouse along Jalan Wan Alwi, undertaken by ARKITEKUEH. Occupying the final two units in the row, the building is positioned prominently at the corner of the block, facing both the major road and Vivacity shopping mall.

Internal elevation shows the stacked configuration of showroom space on the ground and first floors, with office and meeting rooms on the second floor

The brief called for two floors of showroom space on the ground and first levels, with office functions, meeting rooms, and staff areas located on the second floor. A lift core had already been added as part of the renovation. The challenge lay in presenting functional, typically monochromatic office furniture in a way that was engaging and visually distinct, without relying on conventional showroom aesthetics.

Terracotta tiles in varied shapes and tones form a continuous surface at ground level, visually linking the external walkway with the interior showroom

The design response introduced an industrial loft concept that allowed the furniture to be displayed against a backdrop of raw, contrasting materials. Exposed concrete surfaces and oxidised steel finishes were used to complement the clean, modern lines of the furniture, creating a balanced and neutral setting.

Sliding perforated steel panels provide solar shading and visual identity along the first and second-floor façades

A key intervention was the installation of sliding perforated steel panels along the full-height glazed façades on the first and second floors. The panels displayed an abstracted neon yellow version of the client’s logo, enhancing street visibility and helping to filter sunlight and minimise glare in the interior.

At ground level, the design extended the external walkway seamlessly into the showroom. A combination of terracotta tiles in varied shapes and tones, together with grey pebble wash, was used to form a continuous floor surface that visually and physically connects interior and exterior spaces. The external walkway walls were fitted with full-height glazing and steel fins, aligning with the rhythm of the floor patterns.

The showroom interior adopts an exposed concrete and steel palette, revealing the building’s structural frame while integrating services through visible cable trays

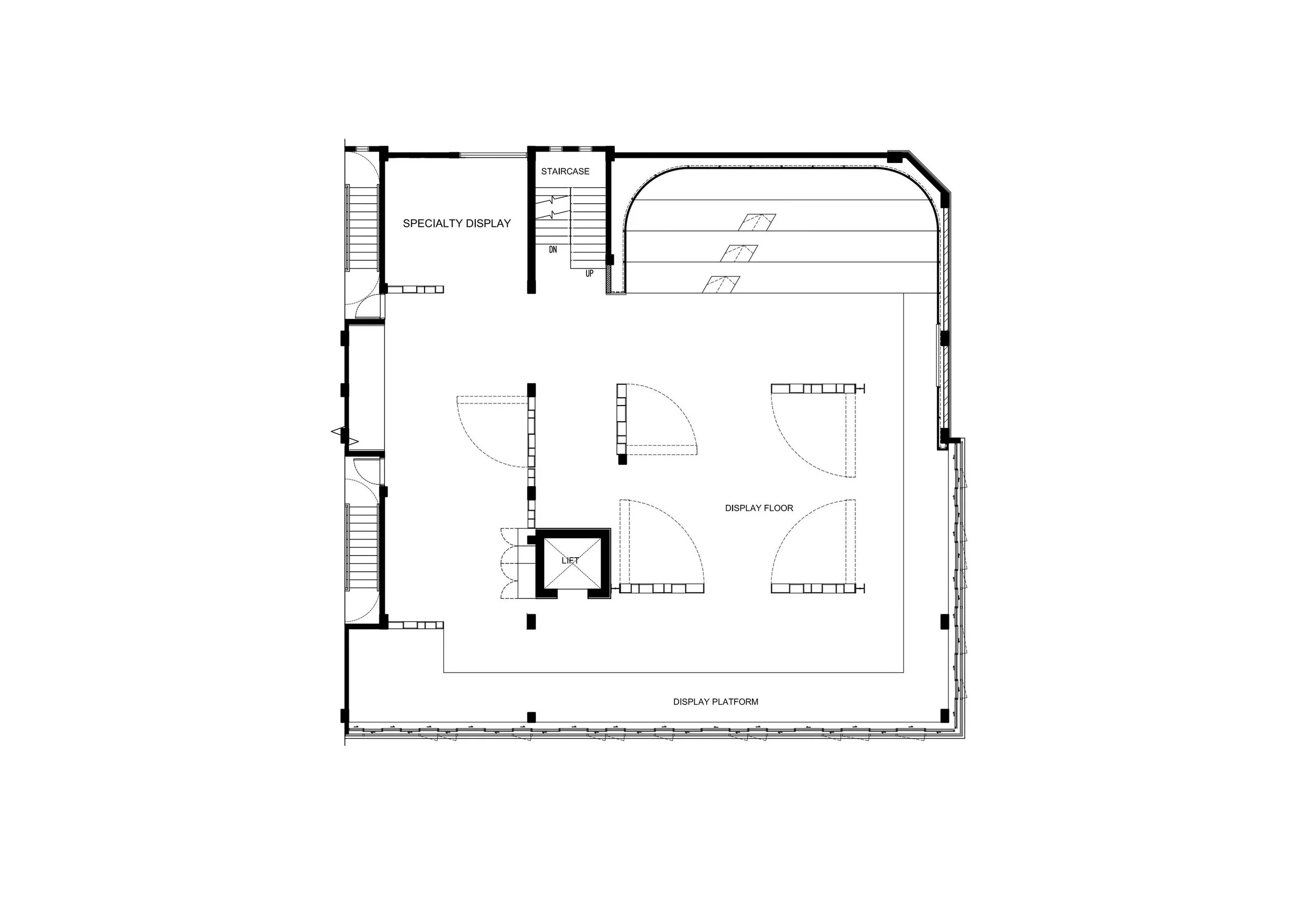
The first floor features a stepped auditorium display platform, doubling as seating for events while showcasing furniture in an elevated setting

Internally, the concrete structural frame was exposed by removing the original plaster, revealing rough, chisel-marked surfaces. The lift core, open central staircase, and a new mezzanine were clad in oxidised steel panels, acting as sculptural elements within the open plan. The exposed soffits of the reinforced concrete slabs were left with a painted finish, while off-the-shelf steel cable trays were used to conceal electrical services and support integrated lighting

The first floor showroom, accessible by the central staircase, carries the same palette of contrasting earthy tones, raw concrete, and whitewash. Different settings for displaying furniture were incorporated here, including a stepped auditorium display platform, which also doubles as audience seating for events, and a raised platform that runs the full length of the façade.

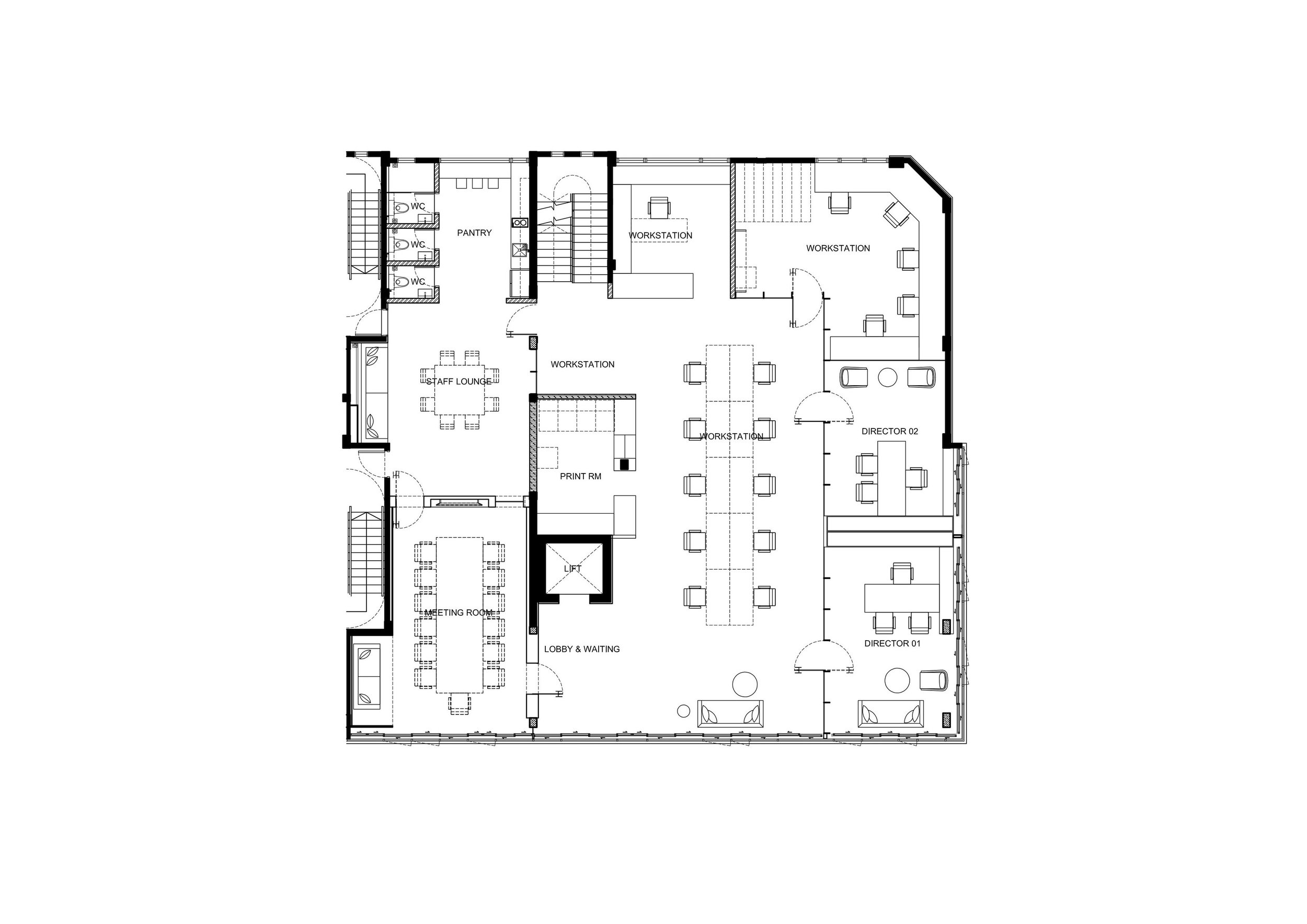
The second floor features an open-plan office with glass-enclosed directors' rooms, a shared meeting room, and staff areas designed for natural light and ventilation

The second floor was planned as an open-plan office, with directors’ rooms enclosed in glass to allow daylight into the central workspace. A meeting room, finished in oxidised steel and timber laminate, was intended to be shared with the adjoining shop unit, which is also owned by the same proprietor who runs a construction business. Other areas, including the staff pantry and rest spaces, were similarly designed to maximise natural light and ventilation.

Text by the architect

 

PROJECT GALLERY

 
  • Architect : ARKITEKUEH
    Interior Designer : IDC Architects
    Client : Satok Furniture
    Area : 1,045 m²
    Project Location : Kuching | Sarawak
    Year : 2025

  • Contractor : Satok Furniture
    Design Team : Ar. Alan Lau | Amily Voon | Ming Wung
    Photography : Bong Chon Fan @ Chonfan Photography

  • Floor | Floor Finishes
    • Tile : Mosaic Gallery | Daitti
    • Others : Carpet by L&C Global Niaga
    Paint Systems : Dulux Pentalite
    Furniture : Formica Laminates

Author Profile Wrapper

Share this project

Previous
Previous

Masjid Darul Furqan

Next
Next

Kota Kinabalu Industrial Park Ready Built Factories 4