Beacon Executive Suite by Aspen Group

A distinctive Sky Podium located at the pinnacle of the BEACON building

BEACON Executive Suite is a contemporary Small Office/Home Office (SOHO) development designed for the discerning few who are seeking an exclusive high-rise living and working environment. Located on a one-acre plot on Jalan Sungai Pinang, one of the major roads in George Town, Penang, BEACON offers an ideal location for those wishing to seamlessly integrate their work and lifestyle in a vibrant urban setting.

BEACON building stands 29 storeys high, with Levels 2-8 dedicated to a multi-storey car park, Levels 9-27 housing 227 SOHO units, and Levels 28-29 featuring the Sky Podium with luxury amenities, including a swimming pool, gym, children’s playground, indoor bar, and study area

The striking facade of the BEACON building is crafted from a dynamic mix of concrete, steel, glass, and greenery

This 29-storey architectural marvel stands as a testament to contemporary design, gracing the skyline with its striking façade, which is crafted from a dynamic combination of concrete, steel, glass, and greenery. The innovative intersection of full and half balcony designs not only creates a pixelated effect on the facade but also provides shade from the sunlight, breaking the monotony of the building’s exterior.

BEACON comprises 227 SOHO units, each offering approximately 980 square feet of space. There are four distinct types of units in total, featuring one- and two-bedroom flats with the option of either a full or half balcony area. These units are ideal for those seeking a combination of living and working environments, providing the perfect blend of comfort, convenience, and style.

Right-side view of the BEACON building shows Jelutong town on its left and George Town city to its right

Rear view of the BEACON building in construction, with a car workshop on the left, Penang Japanese School on the right, and cityscape of George Town at the back

One of the standout features of BEACON is its thoughtfully designed floor plan, with units facing towards George Town city and Jelutong town. Additionally, the incorporation of open corridors facilitates the maximised flow of natural air and light, enhancing both comfort and sustainability within the living experience.

Units offering views of George Town city and Jelutong town

At the pinnacle of BEACON, a distinctive Sky Podium is located on levels 28 and 29, which elevates the living experience to new heights, along with unobstructed views of the surrounding cityscape and Penang Bridge. This exclusive space offers an array of luxurious amenities, including an infinity pool, a sky bar, a gym, a children’s playground, and gazebos for relaxation. This unique space provides a perfect balance of work and leisure, allowing residents to unwind and enjoy panoramic views of George Town and the iconic Penang Bridge.

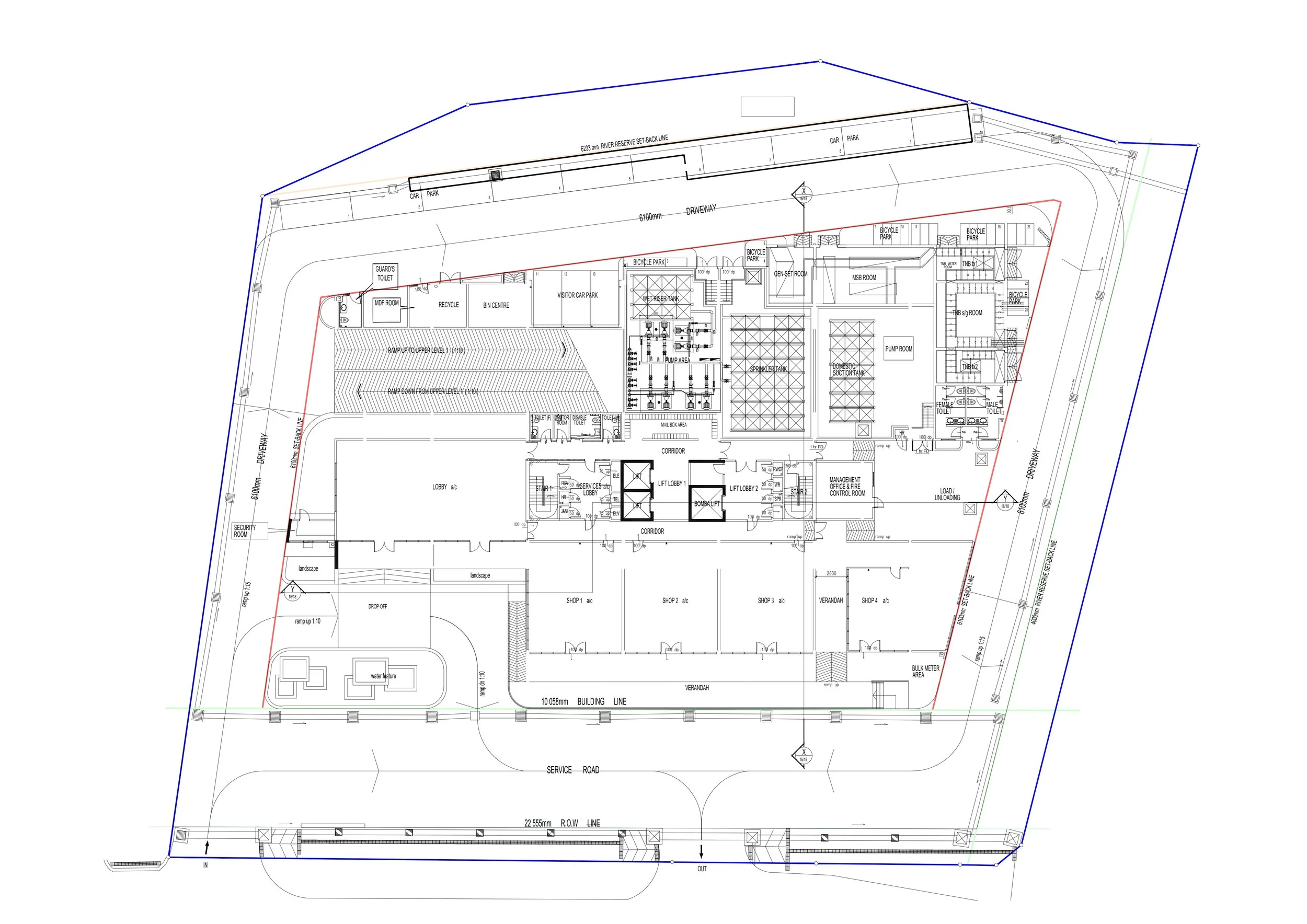
At the ground level, BEACON presents a welcoming atmosphere with its thoughtfully designed drop-off area, complete with a water feature in front of its spacious lobby. Moreover, four commercial units are located at this level to cater to modern conveniences, such as shops or cafes, offering additional convenience for the needs of its residents and visitors.

Common study area with an indoor bar located at the far end of the room, equipped with a microwave, oven, and fridge

For ease of movement, BEACON features ample parking spaces, including a multi-storey car park and designated motorcycle parking bays on the podium levels. This thoughtful design ensures smooth traffic flow and provides easy accessibility for both residents and guests within the building.

Swimming pool with unobstructed views of the surrounding cityscape

In summary, BEACON is not just an ordinary SOHO development – it is a lifestyle choice. Its cutting-edge design, combined with luxurious amenities and a flexible living model, makes it the perfect development for those who wish to work, live, and play in one of Penang’s most sought-after locations. With its contemporary façade, panoramic views, and premium facilities, BEACON is set to offer an exclusive living experience for modern professionals and families alike.

Text by the architect

Ar. TPr. LEE SIEW ANG (formerly from Bintangor, Sarawak) is the principal of SA.LEE Architect Planner in Penang, Malaysia. He obtained a MSc. Planning. B. Arch, BSc. (Housing Building & Planning) from USM, and has 28 years of experience in building design and town planning. He was the Chairman of the Pertubuhan Akitek Malaysia (PAM) Northern Chapter in 2019 to 2021, and also the Industry Fellow for Architecture Programme in USM since 2022.

 

PROJECT GALLERY

 
  • Architect : SA.LEE Architect Planner
    Client : Aspen Vision Sdn Bhd
    Area : 24,014.34 m²
    Project Location : George Town | Penang
    Year : 2021

  • C&S Engineer : Jurutera MTC Sdn Bhd
    M&E Engineer : I Consultancy
    Quantity Surveyor : Kuantibina Sdn Bhd
    Landscape Architect : Site Concept International
    Contractor : Proventus Bina Sdn Bhd
    Design Team : Ar. TPr. Lee Siew Ang | Nur Al-Amin Ramli | Mohd Hazwan

  • Floor | Floor Finishes
    • Porcelain tile : White Horse | Niro | The Cube
    • Vinyl: Laminated floor board by Brenwood Floor
    Wall | Wall Finishes
    • Brick : Cement sand brick by Kilang Batu Bata Pin Long Sdn Bhd
    • Wall Covering : Skim coat by Alliance Drymix Sdn Bhd
    Roofing Systems : RC flat roof
    Aluminium and Glazing : Exotic Windows Sdn Bhd
    Façade Systems : Aluminium composite panel by Exotic Aluminium
    Paint Systems : Biofine Sealer and Biofine Satin by SKK Paint
    Waterproofing | Coating System : Cementitous coating by Pentens Malaysia
    Ceiling | Ceiling Systems : Plasterboard ceiling system
    Door | Hardware : Ironmongeries by St Guchi | HOSO
    Sanitary Fittings | Systems : The Verve | Artone | Krohm | Aimer
    Kitchen Fittings | Systems : TEKA
    Façade lighting : CREE COB
    Outdoor Furniture : Isofu | Les Asia | Ledge Lounger

  • Trees : Tabernaemontana Divaricata 1 & 2 | Aistonia Scholaris | Garcinia Subelliptica | Tristania Obovata
    Shrubs | Groundcovers | Climbers : Aglaonema Nitidum | Eugenia Oleina | Ficus Gold | Murraya Paniculata | Phyllanthus Myrtifolius
    Waterscape : Niro Granite

Author Profile Wrapper

Share this project

Previous
Previous

Botanika Garden P House

Next
Next

Roxy Impiana Hotel