Returning to Where It Began

Aeriel view of SMK Green Road

Returning to Where It Began

An Architect’s Small Contributions to a Familiar School

‘The morning sun rose gently over the school’s old canteen block. From a distance came the familiar sounds of students gathering the chatter of conversations, the clatter of plates, and the quiet rhythm of another school day beginning. I paused beneath the same shaded corridor where I once stood as a boy, sharing snacks with friends and imagining the future.’

Twenty years later, I returned not as a student, but as an architect helping to shape the spaces where many of my earliest memories were formed. In architecture school, I was trained to design museums, cultural institutions, and master plans—analysing problems and imagining solutions that might contribute to the built environment. Yet I came to understand that architecture is not always defined by monumental projects; sometimes its meaning lies in the quiet familiarity of everyday places.

Returning to my middle school brought this into focus. I had spent eight formative years there—longer than the time it took me to complete my architectural degrees. What began as casual conversations with the school gradually evolved into a series of small proposals and interventions, reflecting on how spaces quietly shape daily life. They were never intended to be grand projects, but working on a place so deeply familiar revealed another dimension of architecture—one shaped by memory, continuity, and care.

Kooperasi – The Old Quarter
Reviving memories, one corner at a time

The first task involved refurbishing the old quarters near the canteen into a new Kooperasi. The space carried many of my memories—recess conversations over char kuey teow and the storage of scout camping gear—so my initial intention was to preserve some of that history by reusing materials and creating a small memory corner.

In the end, practical needs shaped the project into a more utilitarian building, which eventually became the first on campus to receive an Occupation Permit (OP). Watching a new generation of students use the space, I realised that architecture does not always need to preserve memories directly; sometimes its role is simply to provide the setting where new ones can begin.

Old existing quaters

Initial proposal with memory corner

The School Hall
Balancing tradition and growth

About five years ago, the school administration proposed building a new hall to accommodate around 1,000 students, initially planning to demolish the old one. However, many of us recognised the value embedded in the existing structure, which carried decades of memories for generations of ex-Greenians.

Proposed extension of new hall

Instead of replacing it, we proposed retaining the original hall and adding a new multipurpose extension to expand capacity while preserving part of the school’s architectural identity. Although the project remains unrealised due to funding constraints, the exploration itself was meaningful, reminding us that in schools, architecture often serves as a backdrop to collective memory.

Proposed free speech and amphitheater

Administration Block and Campus Circulation
Solving space and traffic challenges

Like many growing schools, classrooms, office space, and parking had long been in short supply. At the request of the Pengetua, I prepared a planning proposal to support funding applications.

The design introduced a multi-storey administration block linking the front and rear entrances of the school. Beyond providing additional administrative space, the proposal sought to improve traffic circulation, ease parking congestion, and free up existing areas that could be converted into classrooms. It also established a clearer route across the campus, strengthening connectivity between its front and rear. Ultimately, the proposal reflects the idea that good planning is often less about creating new buildings and more about improving how people move, meet, and experience a place.

This proposal, however, remains at an early conceptual stage.

New admin and traffic planning

Fire Access Gateway
Safety meets design

Most parts of the school were built before the requirements of the Sarawak Building Ordinance (SBO) were introduced. As a result, the existing covered walkways limited the clearance required for fire engine access.

The proposal introduced an internal gateway that preserves the shaded pedestrian path while allowing emergency vehicles to pass through. At the same time, the gateway frames the front facade of the school hall—quietly preserving a familiar visual memory while improving safety. Even a small intervention can quietly reshape how a space functions without erasing its identity.

This proposal has since taken shape, helping to strengthen and improve fire safety access within the campus.

Proposed fire access at gateway

New PJK Hall
Flexible space for learning and play

Students needed a sheltered outdoor space for physical education classes and other activities. Recognising that major school expansion (the proposed extension of new school hall) may not happen in the near future, we proposed a simple and covered hall that could accommodate classes, sports activities, and school gatherings, while offering protection from the tropical sun and rain.

There remains a possibility that this proposal may take shape in the near future if sufficient funding becomes available.

New PJK hall

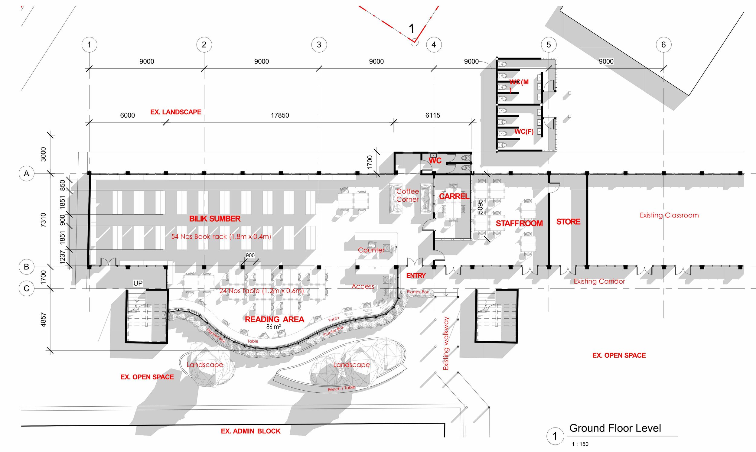
Resource Centre Upgrade
Supporting evolving learning needs

The upgrading and extension of the Resource Centre formed another part of the broader effort to improve the school’s learning environment.

Existing resource center interior

Isometric view of proposal

I hoped the new space would become one of the school’s key activity hubs, encouraging students to develop a stronger interest in reading and learning in a comfortable, café-like setting. Spaces dedicated to knowledge often become the quiet heart of a school—places where curiosity slowly grows.

The project has since secured special Federal funding and is currently being implemented by the relevant agency. Whether the original design is ultimately realised or not, students will soon have access to a proper and improved resource centre.

Exterior view of proposed resource centre

Interior view of working space area of proposed new resource centre

May We Grow as One
The journey continues

The question has never been whether every proposal will eventually be realised. The more important concern is what the future holds for the next generation if school facilities fail to keep pace with their needs.

These proposals represent a collective effort over six years, involving four Pengetua ( headmaster ), dedicated teachers, the PIBG, alumni, and consultants. Ideas have been sketched, discussed, refined—and sometimes left waiting for the right opportunity. The work continues. Architecture, like education, is never truly finished. It evolves gradually, shaped by time, people, and changing needs. Perhaps that is the nature of schools. Like the students who pass through them, they are always growing, adapting, and becoming something new.

And if my service is still needed, I will gladly continue to contribute—returning, in a small way, to where everything first began—and perhaps where many new journeys will quietly begin again.

Text by the architect

 

PROJECT GALLERY

 
  • Architect : BCTay Architect
    Client : SMK Green Road
    Area : -
    Project Location : Kuching | Sarawak
    Year : 2022

Author Profile Wrapper

Share this project

Next
Next

The Landscape Master Plan for Keningau District 2035